PAV-D/DQ ECS Protector Vent

Nitrogen Generator Corrosion Monitoring

General Description

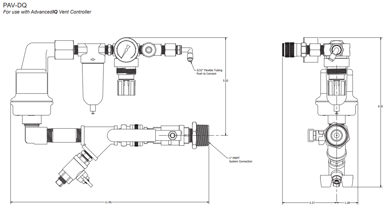
The ECS Protector Vent (PAV-D/DQ) provides oxygen venting in dry pipe fire sprinkler systems. As a fire sprinkler system is filled with a continuous supply of nitrogen gas from the ECS AdvancedIQ Nitrogen Generator System, the PAV-D/DQ allows oxygen rich gas to be vented from the fire sprinkler system. Over a short period of time (typically less than 14 days) the ECS Protector Vent will almost completely remove oxygen from the fire sprinkler system (<2% oxygen).

The ECS Protector Vent is equipped with a levered float valve that prevents water from passing through the restricted venting orifice when water enters the fire sprinkler system. The in-line filter protects the restricted venting orifice from contaminants from the sprinkler system. A backpressure regulator is included to prevent total system depressurization from the vent assembly during the venting process. The restricted venting orifice allows oxygen to be vented from the fire sprinkler system at a controlled rate to achieve a minimum nitrogen concentration of 98%.

Features

ECS Protector Vent (U.S. Patents 8,720,591, 9,144,700, 9,186,533 and 9,610,466)

Specifications

Dimensions : 13.5” (W) x 7.5” (H) x 4.25” (D)
Weight : 7 Lbs
Service Pressure : Up to 175 PSIG (12 Bar)
System Connection : 1” NPT Male
Temperature Range : 40˚F – 125˚F (5˚C – 51˚C)

Installation

The ECS Protector Vent is to be installed as shown on the engineering design documents. If a location is not specified install the PAV-D/DQ vent on the fire sprinkler system riser on the system side of the main control valve. The PAV-D vent can be used to provide source gas for the ECS Protector SMART Gas Analyzer (SGA-1). The PAV-DQ includes the special 5/32” tubing fitting for use with the ECS AdvancedIQ Vent Controller. For detailed installation and operation please refer to the ECS AdvancedIQ Nitrogen Generator Manual or PAV-D/DQ installation sheet.

Maintenance

ECS Protector Vents require limited maintenance. ECS recommends inspecting and cleaning Y-Strainer and filter annually, replace as necessary. See owner’s manual for required maintence procedures.

Cabinet Dimensions