The ECS AdvancedIQ Wall Mount Nitrogen Generator is designed to facilitate the Dry Pipe Nitrogen Inerting (DPNI) process for controlling oxygen corrosion in dry pipe and preaction fire sprinkler systems. The nitrogen generator utilizes membrane separation technology that produces 98%+ nitrogen gas. The nitrogen generator can be used in cold storage/freezer applications due to the added benefit of ice plug mitigation. Cold storage application requirements vary based on the temperature of refrigerated space, contact ECS for design assistance.
The AdvancedIQ HMI display screen allows for easy operation and complete control of the nitrogen generator as well as the ability to communicate with the nitrogen generator from anywhere in the world. Access to nitrogen generator operation, maintenance, diagnostics and stored historical data is easily obtained through the HMI screen on the nitrogen generator or remotely through the internet.
The nitogen generator supplies single or multiple sprinkler systems depending on the number of systems, the volume of the largest system, and the cumulative volume of all systems being supplied. The integral air compressor and bypass valve allows for maintenance or “fast fill” needs to meet the NFPA 13 30-minute fill requirement.
The nitrogen generator is designed to inert the supervised sprinkler systems within 14 days and then automatically provide nitrogen gas for pressure maintenance. When paired with either the Standard Vent (PAV-D/DQ) or the SMART Vent (PSV-D/DE) installed on the sprinkler riser, the nitrogen generator facilitates our patented “fill and purge” breathing process to remove all the corrosive oxygen gas in the sprinkler systems without the need for a nitrogen storage tank.
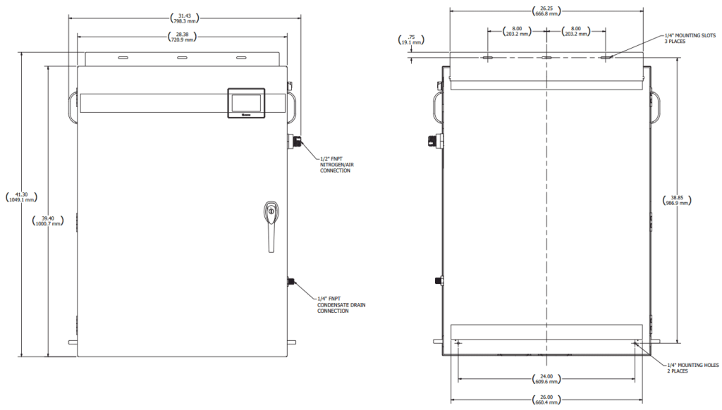
| Cabinet Dimensions | : | 28.5” (W) x 39.5” (H) x 11.5” (D) |
| Weight | : | AG-2000 (208 Lbs), AG-3500 (220 Lbs) |
| Power Supply Available In (dedicated circuit) | : | 200-240VAC/1 phase/50-60Hz |
| Power Consumption | : | 10 Amps |
| Nitrogen/Air Connection | : | ½” NPT Female |
| Drain Connection | : | ¼” NPT Female |
| Temperature Range | : | 40˚F – 105˚F (5˚C – 40˚C) |
| Replacement Filters | : | FKWM-FS (annual maintenance) |
| Model Number | AG-2000†† | AG-3500†† |
|---|---|---|
| Total System Capacity Gallons (Liters) | 2.000 (7.571) | 3.500 (13.249) |
| Single System Capacity† @ 40 psig (2.8 bar) Gallons (Liters) | 800 (3.028) | 800 (3.028) |
| Single System Capacity† @ 20 psig (1.4 bar) Gallons (Liters) | 1.800 (6.815) | 1.800 (6.815) |
† Capacity based on NFPA 13 30-minute fill requirement of largest single system
†† Nitrogen production is less than 5.5 ft3/min (160 L/min) at 10 psi (0.7 bar) as defined in NFPA 13
The ECS Nitrogen Generator is designed to be mounted directly to the wall at the installation location inside the riser room. Allow access to the front of the cabinet for service and place the unit in a location near fire sprinkler system connections, a drain, and a dedicated electrical connection. Allow for clearance around vents on side and bottom for proper cabinet ventilation. For detailed installation and operation please refer to the ECS AdvancedIQ Nitrogen Generator Manual.
——– Lets Talk With Us!
Our achievement in developing business solutions is largely attributed to our dedicated and skilled team.